Trusted by the top appraisal companies:
Perfect for lenders and Appraisal Management Companies who'd like to partner to collect data
Perfect for lenders and Appraisal Management Companies who'd like to partner to collect data
Our certified 3D tour technicians capture a 3D tour with 360° room-by-room navigation and bird's-eye views of the property layout, a 2D floor plan with interior walls, ANSI-aligned gross living area (GLA) measurements, and exterior shots and street views. So appraisers can confidently get the conclusion of values with up-to-date property information.
As Seen In
Benefits of using 3D virtual tours for desktop appraisals
48 hour turnaround
We will deliver your data within 48 hours so you can help your lenders set a close date with confidence.
Extensive network
Leverage thousands of agents on Asteroom's platform to access 85% of continental U.S. properties within 24 hours.
Rich and reliable data
Up-to-date 3D tours, captured on-site, allow appraisers to see the real status of subject properties.
Compliance
ANSI compliant 2D Floor Plan with GLA calculation and exterior measurements for 1004 Desktop / 70D.
Higher productivity
Desktop appraisals boost productivity by offering appraisers a real-time status of subject properties, and making database hopping unnecessary.
Appraisal modernization
Help your lenders and appraisers embrace the new industry standards.
What's included:
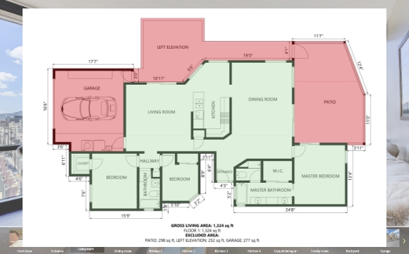
2D Floor Plan
ANSI compliant 2D Floor Plan with GLA calculation and exterior measurements
3D Interior Room Views
Interactive 3D Interior Room Views of every accessible interior space
3D Exterior Property Views
Interactive 3D Exterior Property Views of all 4 corners plus front and back yard
Exterior and street views
Exterior and street views for contextual evaluation of property's neighborhood
Talk to our Team
Book a shoot
Why Asteroom?
Happier appraisers
Help appraisers gain confidence in desktop assignments by minimizing their risks with 3D walk throughs
Nationwide service network with well-trained expertise
All 150 top metro areas are served, plus many of the rural areas
Standardized floor plan compliant with 1004 Desktop / 70D
ANSI compliant 2D Floor Plan with GLA calculation and exterior measurements
The most up-to-date property condition display in a 3D tour
Interactive 360° room-by-room navigation and a 3D dollhouse combine to give you clear and accurate bird's-eye views of the property's layout, including exterior and street views
How it works
1. Schedule a shoot
1. Schedule a shoot
Enter the subject property information.
2. Task assignment
2. Task assignment
We will find an 3D Tour capture technician that can go out in the next 1 to 2 calendar day.
3. Pre-shoot confirmation
3. Pre-shoot confirmation
An Asteroom 3D tour capture technician will get in touch with the onsite contact person to schedule a visit.
4. Property capture
4. Property capture
An Asteroom 3D tour technician will go out and shoot the subject property.
5. Post-production
5. Post-production
Asteroom's post-production team will create all the deliverables. You can expect them delivered within 48-72 hours after an order is placed.
6. Delivery
6. Delivery
You will receive an email with the follow assets:
  • 2D floor plan with GLA calculation and exterior measurements
  • Interactive 360° room-by-room tour for easy evaluation of property condition
  • 3D dollhouse illustrating home’s space interactively, linked to each room or exterior shot
Book a shoot
Interested in becoming
a partner?
Interested in becoming a partner?
Give us a few details and we’ll follow up within 24 business hours
Full name*
Phone*
Email*
Company*
City*
State
Projected number of weekly desktop appraisals
Additional Information
Frequently Asked Questions
No, we don’t. We only collect property data for appraisers to help them conclude the value of the property in a more accurate and efficient way.
Yes, there are interior walls and a gross living area (GLA) to help appraisers complete a Desktop Appraisal.
The floor plan is created from the subject property’s 3D dollhouse.
Dimensions will be ± 4%. GLA calculation will be ± 8%.
20 minutes for a house around 3,000 sqft.
Great travel distances may limit the availability of qualified 3D technicians and may add cost in some cases. Please contact us for a quote.
Cancellations are allowed up to 2 hours prior to a scheduled shoot. Once an order starts creation it cannot be canceled or refunded.
Data will be returned within 48 to 72 hours from the date it’s ordered.
No, we don’t. We only collect property data for appraisers to help them conclude the value of the property in a more accurate and efficient way.
20 minutes for a house around 3,000 sqft.
Yes, there are interior walls and a gross living area (GLA) to help appraisers complete a Desktop Appraisal.
Great travel distances may limit the availability of qualified 3D technicians and may add cost in some cases. Please contact us for a quote.
The floor plan is created from the subject property’s 3D dollhouse.
Cancellations are allowed up to 2 hours prior to a scheduled shoot. Once an order starts creation it cannot be canceled or refunded.
Dimensions will be ± 4%. GLA calculation will be ± 8%.
Data will be returned within 48 to 72 hours from the date it’s ordered.
BACK TO TOP
Copyright © 2025 Asteroom, Inc. All rights reserved.